Hoy está previsto el izado de la cercha lateral este la cual lleva varias semanas en proceso de ensamblaje sobre la plataforma creada a tal efecto en el Paseo de la Castellana. Con una longitud de 144 metros 700 toneladas de peso, la cercha este se elevará del suelo hasta completar una actuación que requiera la máxima precisión. Decenas de profesionales llevan días comprobando datos que se han recogido en los simulacros de izado que se han venido ejecutando hasta el día de ayer domingo en sus distintas fases.
Antes de empezar la operación de izado se han realizado exhaustivos controles del sistema de heavy lifting, inspeccionándose los elementos clave para su izado: cilindros de heavy lifting, conexiones hidráulicas y eléctricas, cordones de acero, centrales hidráulicas y resto de elementos de seguridad del proceso.
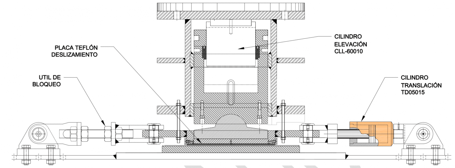
Para la operación de izado de las cerchas de la nueva cubierta del nuevo Bernabéu se utiliza un sistema de elevación basado en cilindros hidráulicos con cordones de acero (heavy lifting). Los izados se realizarán desde el lado de la avenida de la Castellana en sentido oeste-este, sobre la plataforma auxiliar creada a tal efecto.
Cada carretón de translación dispondrá́ de 2 bastidores de ajuste transversal para permitir el movimiento en 2 ejes de cada uno de los cilindros de heavy lifting. Encima de cada uno de los cuatro bastidores de ajuste transversal se situa su correspondiente cilindro hidráulico de heavy lifting (total 4), los cuales serán los encargados de realizar las operaciones de izado.
Los 4 cilindros de heavy lifting disponen de un número variable de cordones de acero que a su vez se unen a la estructura izada por medio de 4 enganches. La actuación de estos 4 cilindros de heavy lifting de manera sincronizada permite que se eleve la estructura al traccionar los cordones de acero que pasan por su interior. Los cordones de acero que se utilizan en los izado tienen una fuerza límite de rotura de 28,4 toneladas por cordón y cada cilindro instala 42 cordones de este tipo. La seguridad es la máxima prioridad en todas las actuaciones que se llevan a cabo en el nuevo Bernabéu.
Para el izado se dispondrán de 4 cilindros de heavy lifting situado en 2 carretones de traslación (2 cilindros por carretón). Estos carretones con capacidad de traslación sobre las 2 cerchas principales de nueva construcción de ambos fondos, se situarán junto con su respectivos cilindros de heavy lifting en el lado de la avenida de la Castellana, que es la zona donde se dispondrán las estructuras que se van a izar.
El sistema de enganche a la estructura está formado por una pieza en forma de horquilla que dispone de un bulón para su conexión a la estructura auxiliar de izado. En su parte superior dispone de un anclaje con cuñas para fijar los cordones de acero utilizados para el izado.
Se dispondrá de un sistema de nivelación en los carretones de translación para realizar un giro de la cercha sobre su eje longitudinal y orientarla según la fase de desplazamiento.
Los 4 cilindros de heavy lifting izarán la cercha hasta la cota de las cerchas principales que se ejecutaron en sentido oeste-este sobre las nuevas torres y los nuevos pilares del lateral este. En ese momento se transferirá la carga de la cercha a los cilindros principales de los carretones de traslación (1 por carretón), quedando el conjunto cercha-carretones disponible para su posterior desplazamiento a la zona de ensamblaje de la cubierta mediante el sistema de elevación y ajuste transversal situado en los carretones de traslación el cual transferirá la carga de la cerchas izadas a los carretones de traslación para su posterior desplazamiento sobre las cerchas principales de los fondos.
Seguiremos el izado y subiremos material inédito del mismo en las próximas horas sobre el que podéis comentar en nuestras redes sociales: Twitter, Instagram y en nuestro canal de YouTube. Además, si queréis podéis participar en el foro de debate.





